홍콩한타임즈
◆ 신속하고 정확한 “홍콩한타임즈”◆
홍콩 실시간 뉴스 2022년 1월 18일(화)
■ COVID-19 의무검사 봉쇄구역 지정
에버딘
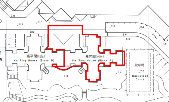
18일 저녁, 정부가 코로나 의무검사 봉쇄구역을 지정하고 해당구역 전 주민 대상으로 코로나 검사를 내일 아침까지 시행한다. 모든 사람들은 검사가 끝날 때까지 구내에 머물러야 한다.
1월 8일부터 18일사이 해당구역에 2시간 이상 머무른 사람은 의무적으로 20일까지 코로나 검사를 받아야 한다.
▲ 봉쇄구역 : Ka Sing House (Block A), Ka Lung Court, 33 Tin Wan Praya Road, Aberdeen
***솔마켓 구정선물 준비하시기 바랍니다. 문의 : 5376-1715